Parque Metropolitano Alma Viva
Location: Villavicencio, Meta; Colombia
Year: 2020
Area (m2):
Directors: Jaime Eduardo Cabal – Jorge Emilio Buitrago
Design team: Carlos Palacio – Cristian Camilo Rios – Milena Jaramillo – Alejandro Pérez – Mariana Gil – Isabella Giraldo – Sebastián Aguirre – Laura Ossa.
Client: Alcaldía de Villavicencio
Awards and publications:
2° Puesto en el Concurso público de arquitectura para el diseño del parque metropolitano Alma Viva.
Description:
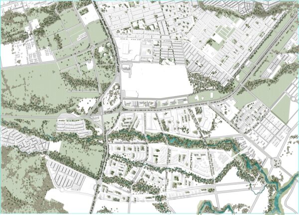
The Metropolitan Park Alma Viva seeks to reconcile natural and urban dynamics, providing a stage for citizen participation where there is a sense of ownership of the territory based on the recognition of the immense hydrological, biological, and cultural wealth of the piedmont plains. Over the coming years, Alma Viva will transition from being an environmentally important but isolated space within the city to becoming a regionally scaled park that develops a land management model for
Villavicencio with a landscape-focused perspective, where nature and culture constitute an integrated system that generates new opportunities for co-learning with the territory. To achieve this goal, three strategies are proposed to structure the park, along with six actions to enable its development:
GENERATE A FLEXIBLE RANGE OF USES: Propose park uses at different scales, focusing on education and the environment to introduce new paradigms of activities in public spaces, recognizing structural and complementary activities to the park that can evolve over time through participation strategies to address identifiable needs at the neighborhood and municipal scales, while simultaneously offering programs and activities to attract tourism at the national and international levels. LANDSCAPE IN MOTION
RECOGNIZE ENVIRONMENTAL AND CULTURAL SYSTEMS: The park serves as a living infrastructure that acknowledges the natural variables underpinning it and highlights the values inherent to local culture with the aim of creating educational routes and a range of recreational activities that enhance its responsible use and conservation. LANDSCAPE IN SYMBIOSIS
INTEGRATE WITH THE TERRITORY: Identify and integrate the current and future infrastructures surrounding the park, such as Los Fundadores Park, Villa Bolívar Park, the Silos, urban growth areas, among others, and propose connections with areas of opportunity to promote connectivity between mountains and rivers, expanding the park’s impact zone to consolidate it as an area of metropolitan and departmental interest. EXPANSIVE LANDSCAPE