Centro deportivo Fontanar del Río

Location: Bogotá, Cundinamarca, Colombia

Year: 2017

Area (m2): 6.494

Directors: Jaime Eduardo Cabal – Jorge Emilio Buitrago

Design team: Sebastián Rosas – Cristian Camilo Ríos – Milena Jaramillo – Catalina Molina – Daniel Osorio – Dg. Adriana Garcia – Ing. Sébastien Bigot – Juan Esteban Zapata

Client: Instituto Distrital de Recreación y Deporte

Awards and publications: Mención de honor en Concurso público de anteproyecto arquitectónico: Parque Fontanar del Río.

Description:

The project begins by integrating the program with three elements found in the local landscape: the neighborhood, the wetland, and the hills, connecting them to the existing park through a canopy that reimagines the building as more than a solid structure. Instead, it becomes a filtering cover, framing and enhancing the landscape.

It blends into the landscape through a modular, rational, and precise structure, aiming to become an integral part of the park’s future canopy. This allows it to bridge existing activities with future ones, functioning as a large covered pavilion with the flexibility to adapt and evolve over time, enriching the range of experiences for users.

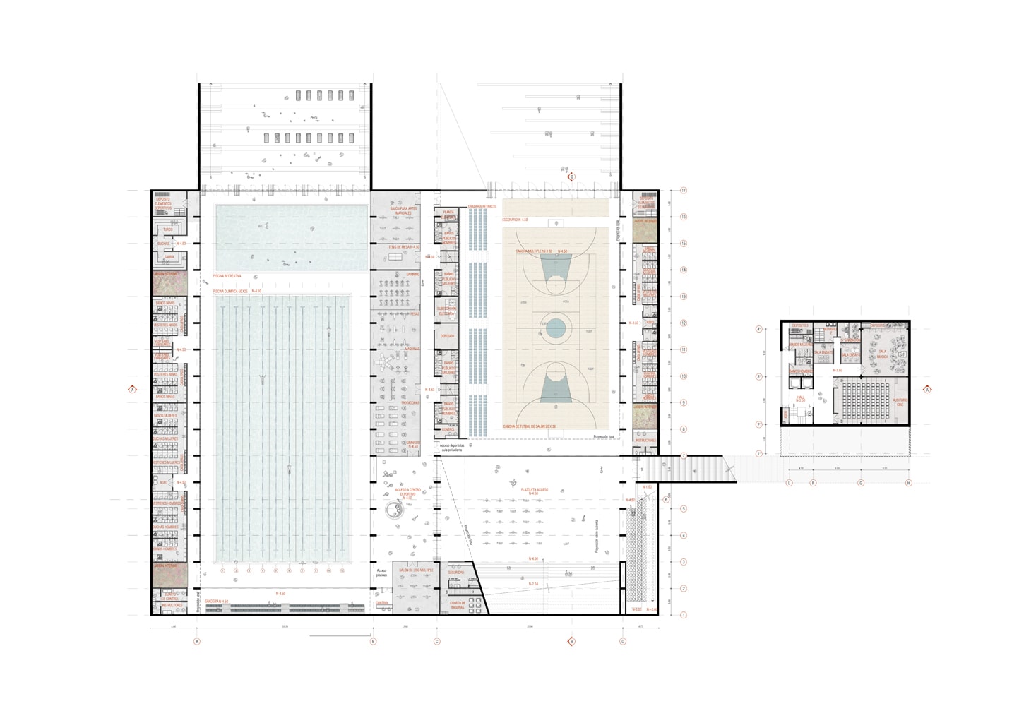
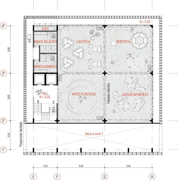
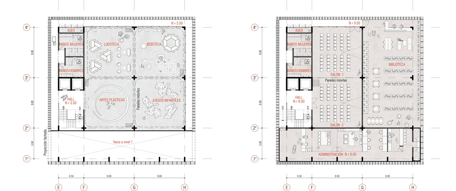
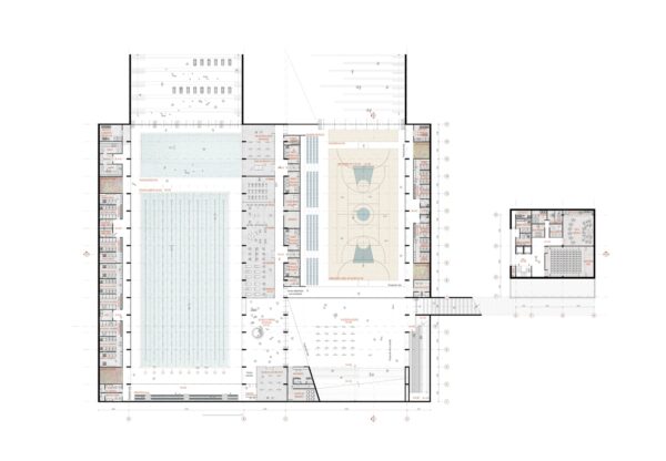
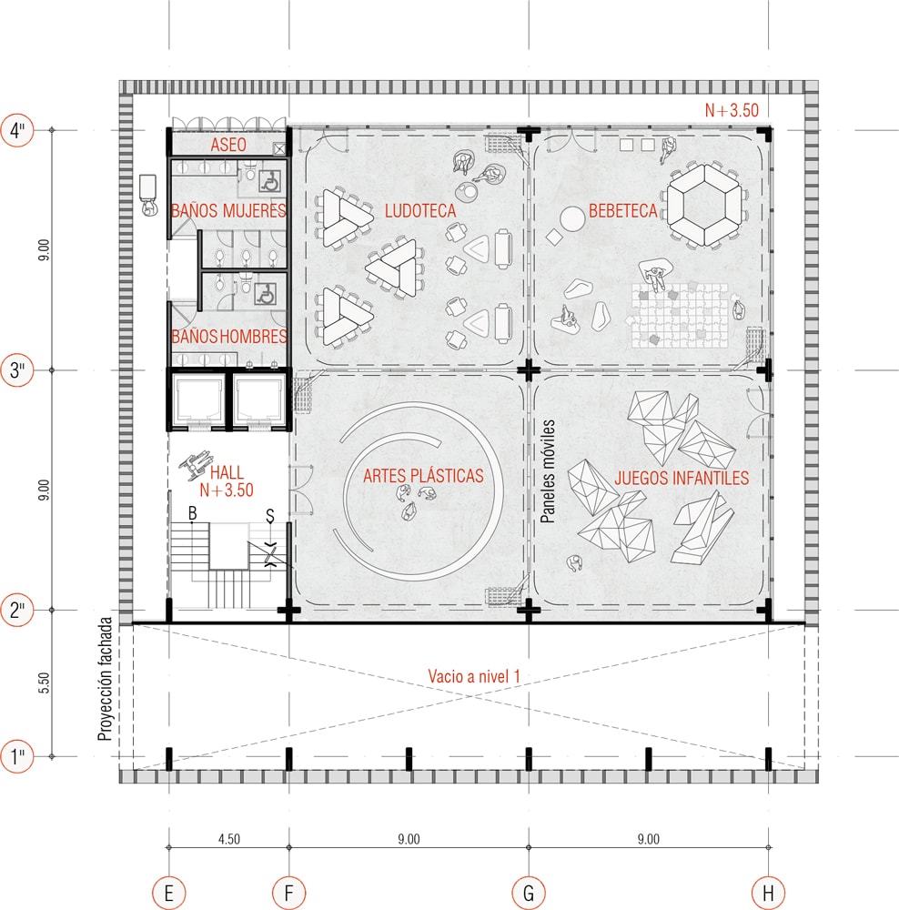
Planimetry

Schemes