Vivienda Cali
Location: Cali, Colombia
Year: 2021
Area (m2): 16.057
Directors: Jaime Eduardo Cabal – Jorge Emilio Buitrago
Design team: Alejandro Pérez, Mariana Gil Flórez, Sebastián Aguirre, Steven Ríos Marín, Sara Sánchez Montoya, Samuel Acevedo Martínez, Santiago Londoño Morales, Camila Calle Rodas, Santiago Atehortúa, Estefany Muñoz, Sebastián Mejía, Adriana García Londoño, Alex Jiménez, Camilo Guerrero, Verónica Henriques.
Client: Alcaldía de Santiago de Cali – Fondo Especial de Vivienda FEV – Sociedad Colombiana de Arquitectos (SCA Valle),
Awards and publications:
1° PUESTO (2021) Concurso Público de anteproyecto del diseño urbano, paisajismo y prototipo de vivienda social rural sostenible para el reasentamiento de familias con vocación productiva.
Description:
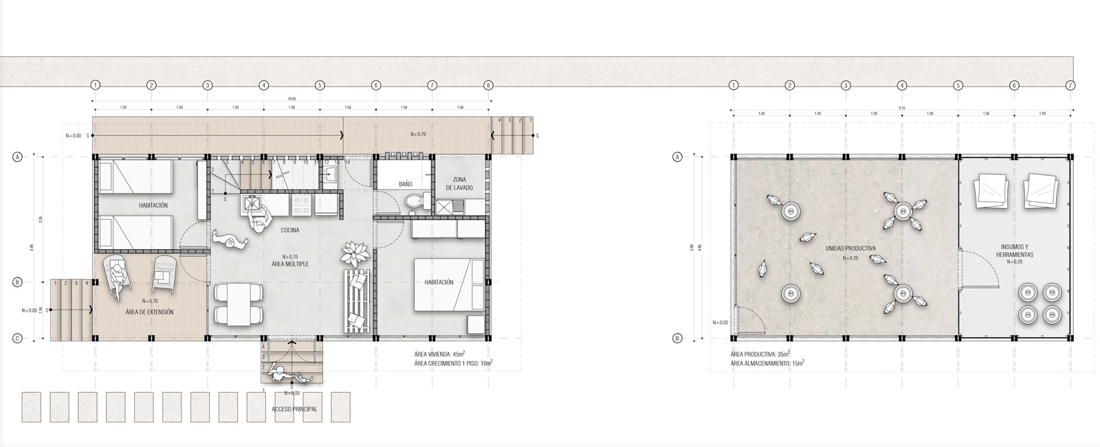
Rural housing is a system of relationships involving various activities and scales where living and working occur simultaneously, blending domestic and productive elements. It’s a HOME for living, working, sheltering, and engaging with the landscape.
ural housing must establish a place rooted in territorial identity, recognizing modes of habitation and identifying values of the local landscape. The aim is to build a collective habitat: A VILLAGE.
A transition strategy is proposed based on structuring the territory around water. Canals, wetlands, and rivers determine a system of trails and routes connecting urban and rural areas. This involves uses focused on education, tourism, and production under agroecological criteria.
The Navarro Village is defined on three scales:
- Village = Neighborhood
- Neighborhood = Grouping
- Parcel = Unit (house + productive module + agricultural development land)
Rural housing is part of a collective, thus it must be understood on three scales: the unit, meaning the property; the grouping, referring to neighborhood blocks sharing services like water or service roads; and finally, the village, which is the aggregation of neighborhoods.
The Navarro Village comprises individual and collective rural properties, structured by the SAMAN PROMENADE and local and inter-village integration roads defining the Neighborhoods.