Coliving

Location: El Retiro, Antioquia.

Year: 2022

Area (m2): 1.300

Directors: Jaime Eduardo Cabal – Jorge Emilio Buitrago

Design team: Alejandro Perez – Steven Rios Marin – Samuel Acevedo – Juan Pablo Muñoz Marín – Sara Sanchez – Laura Valentina Quiceno – Santiago Londoño – Nicolas Vargas

Client: 2b eCommerce

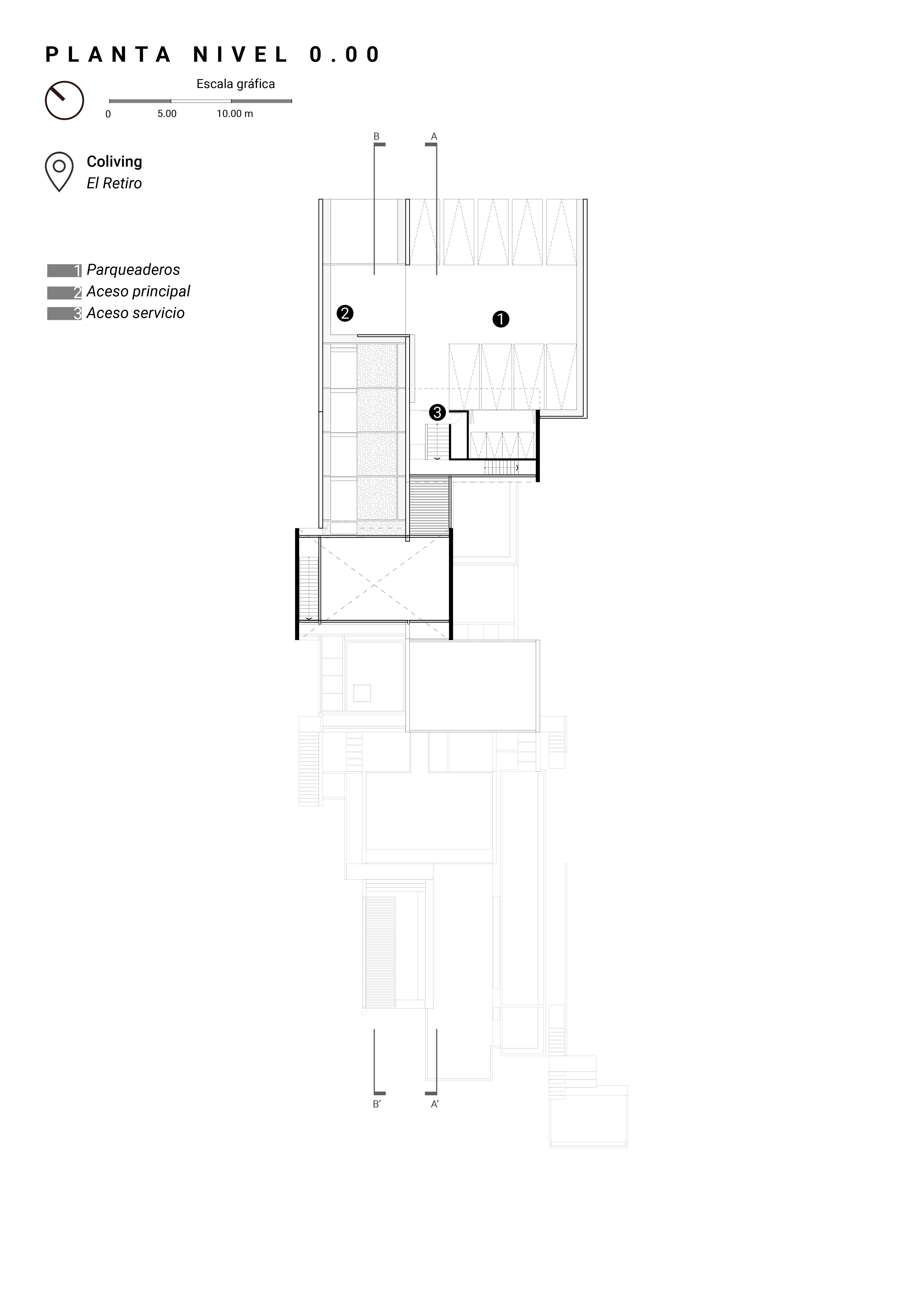
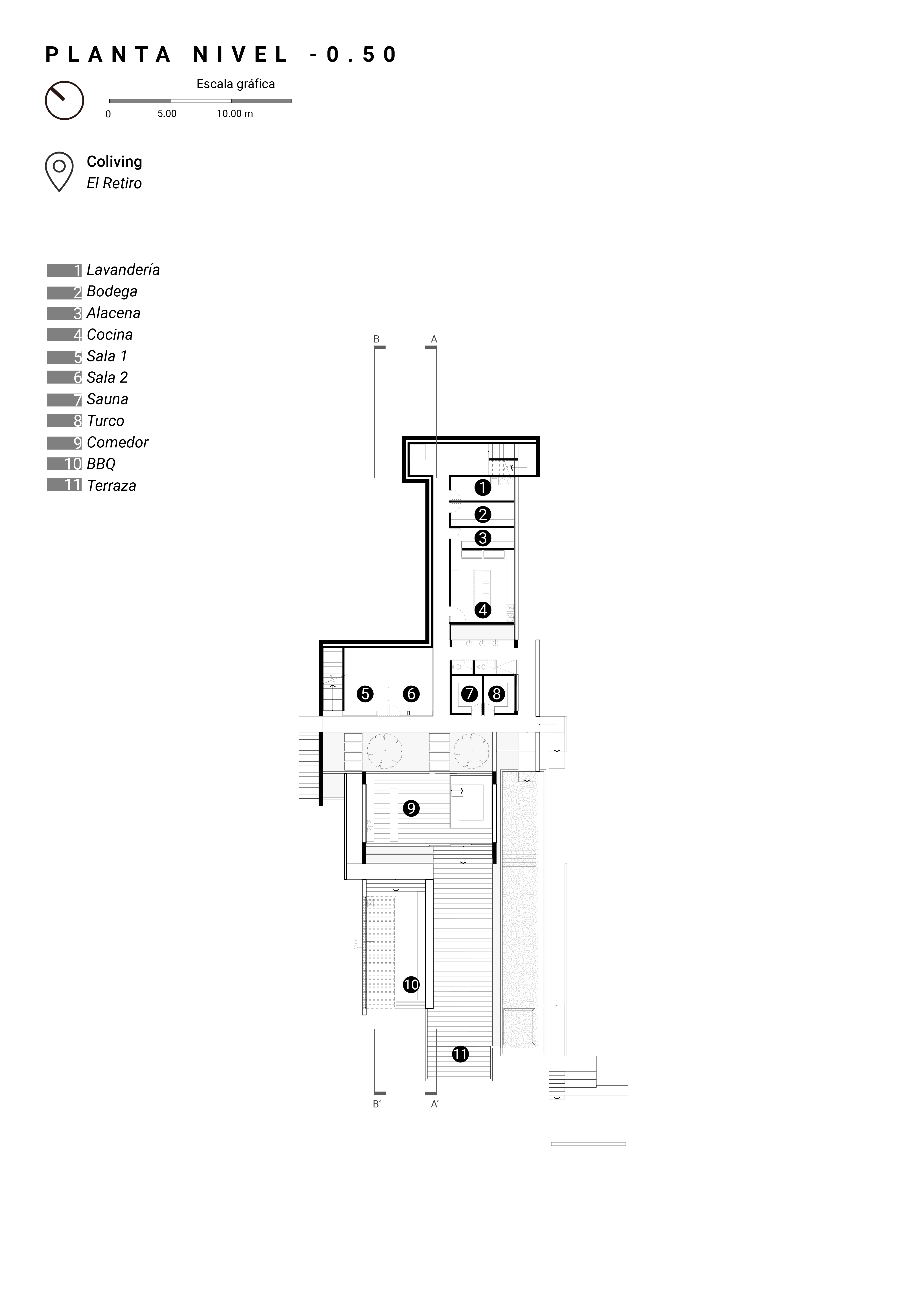
Planimetry

Schemes